352-793-7511
Your Trusted Home Builder Since 1988
Home
About Us
Floor Plans
Communities
Find Us
Contact Us
Visit Our Office At:
320 W. Belt Avenue Bushnell, Florida
License: CBC1258883
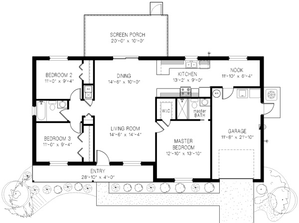
The Oak Model
Cherry Laurel
River Birch
Southern Magnolia
Oak
Highlander
Jennifer
Ashton
Adams Cracker
Brooke
Nicholas
Marie Rose
Palmer
Evergreen
Woodridge
The Oak - 1810 square feet
See our Standard Features